










The Restful Retreat
Engineering stamps available for all plans upon request to meet local code requirements.
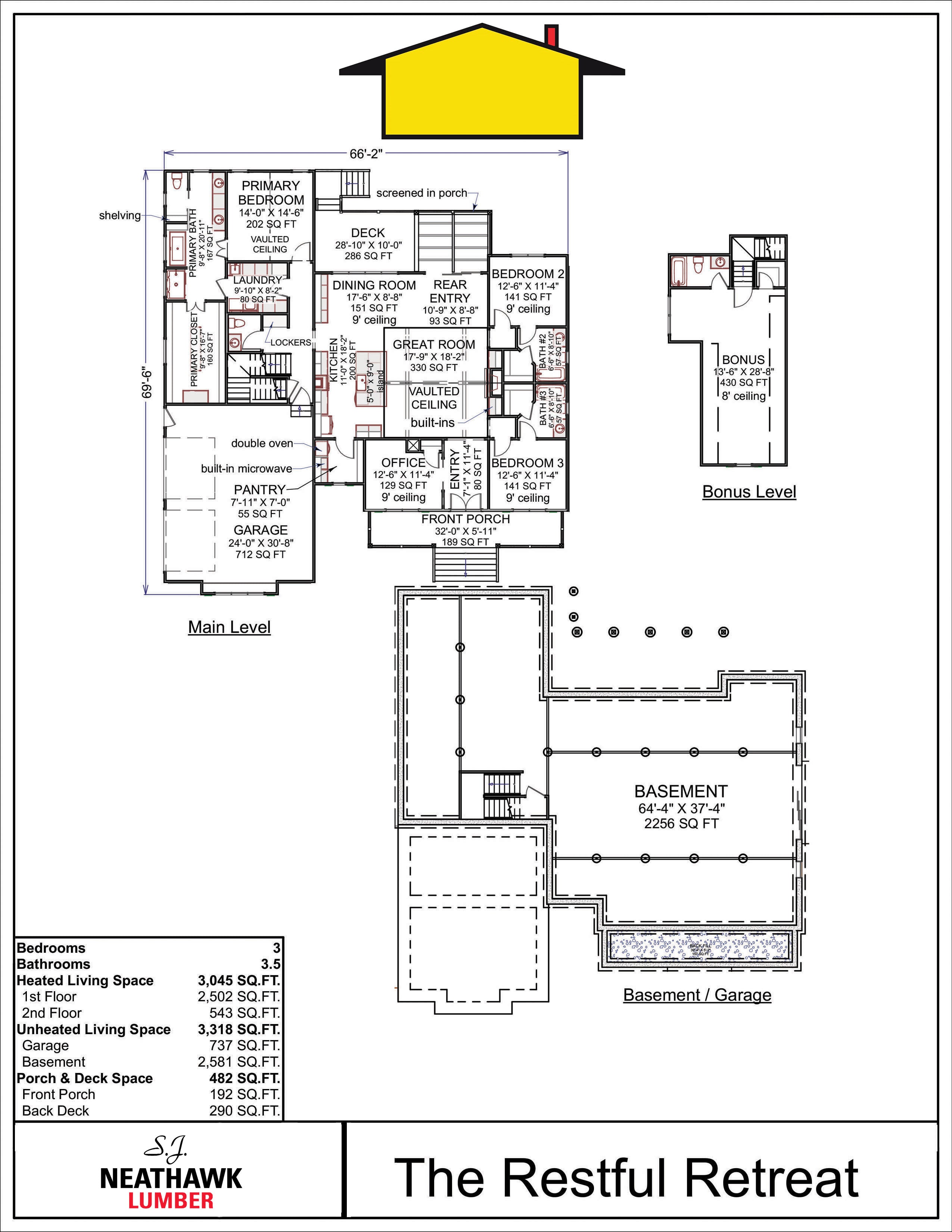
Plan Code: P-342-001-B
SQUARE FOOTAGE BREAKDOWN
Total Heated Area: 3,045 sq. ft.
First Floor: 2,502 sq. ft.
Second Floor: 543 sq. ft.
Unheated Area: 3,318 sq. ft.
BEDS/BATH
Bedrooms: 3
Full Bathrooms: 3
Half Bathrooms: 1
STYLE
Craftsman
GARAGE
Type: Attached
Area: 737 sq.ft.
Count: 2
Entry: Side
FOUNDATION TYPE
Standard Foundations: Basement
Optional Foundations: Walkout, Monolithic Basement, Daylight, Slab, Crawl
ROOF DETAILS
Primary Pitch: 9 on 12
Secondary Pitch: 14 on 12
Framing Type: Stick or Truss
EXTERIOR WALLS
Standard Type(s): 2x4
Optional Type(s): 2x6
DIMENSIONS
Width: 66’2“
Depth: 69’6”
Max Ridge Height: 26’8”
CEILING HEIGHTS
First Floor / 9’0”
Second Floor / 8’0”
Lower Level / 9’0”
THIS PLAN CAN BE MODIFIED.
Choose options











The Restful Retreat
Sale price$1,245.00
