











Spanish Sunset
Engineering stamps available for all plans upon request to meet local code requirements.
Plan Code: P-543-001-B
SQUARE FOOTAGE BREAKDOWN
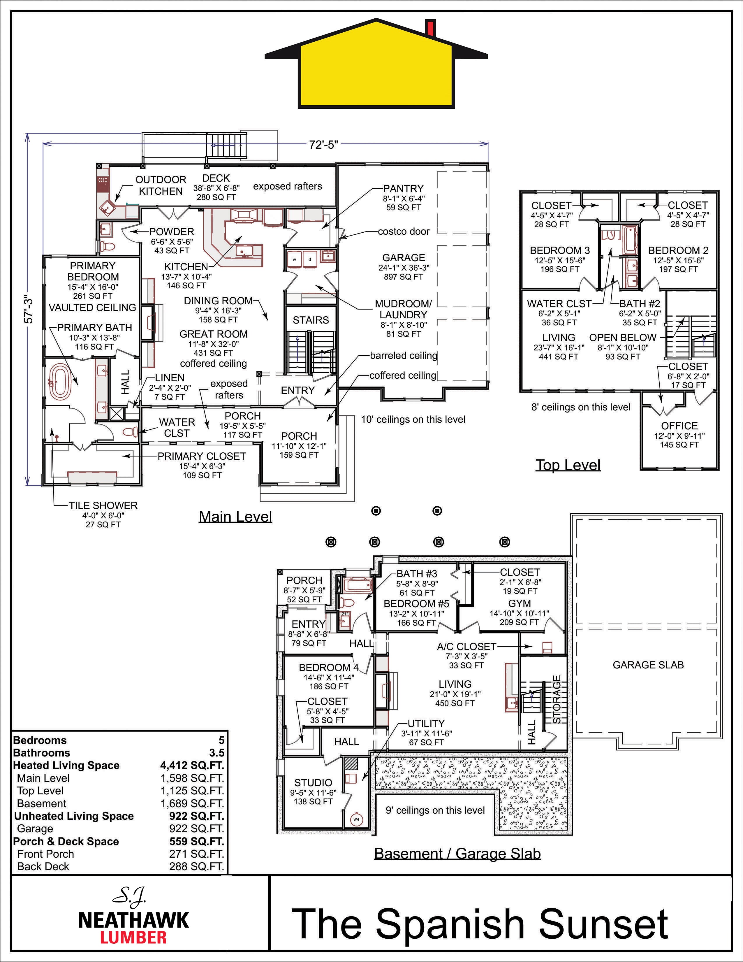
Total Heated Area: 4,412 sq. ft.
First Floor: 1,598 sq. ft.
Second Floor: 1,125 sq. ft
Lower Level: 1,689 sq. ft.
BEDS/BATH
Bedrooms: 5
Full Bathrooms: 3
Half Bathrooms: 1
STYLE
Spanish, Latin
GARAGE
Type: Attached
Area: 922 sq. ft.
Count: 3
Entry: Side
FOUNDATION TYPE
Standard Foundations: Basement
Optional Foundations: Walkout, Monolithic Slab, Daylight, Crawl, Slab
ROOF DETAILS
Primary Pitch: 5 on 12
Secondary Pitch: 3 on 12
Framing Type: Stick or Truss
EXTERIOR WALLS
Standard Type(s): 2x4
Optional Type(s): 2x6
DIMENSIONS
Width: 72’5“
Depth: 57’3”
Max Ridge Height: 26’9”
CEILING HEIGHTS
First Floor / 10’0”
Second Floor / 8’0”
Lower Level / 9’0”
Lower Level / 9’0”
THIS PLAN CAN BE MODIFIED.
Choose options












Spanish Sunset
Sale price$1,545.00
