

































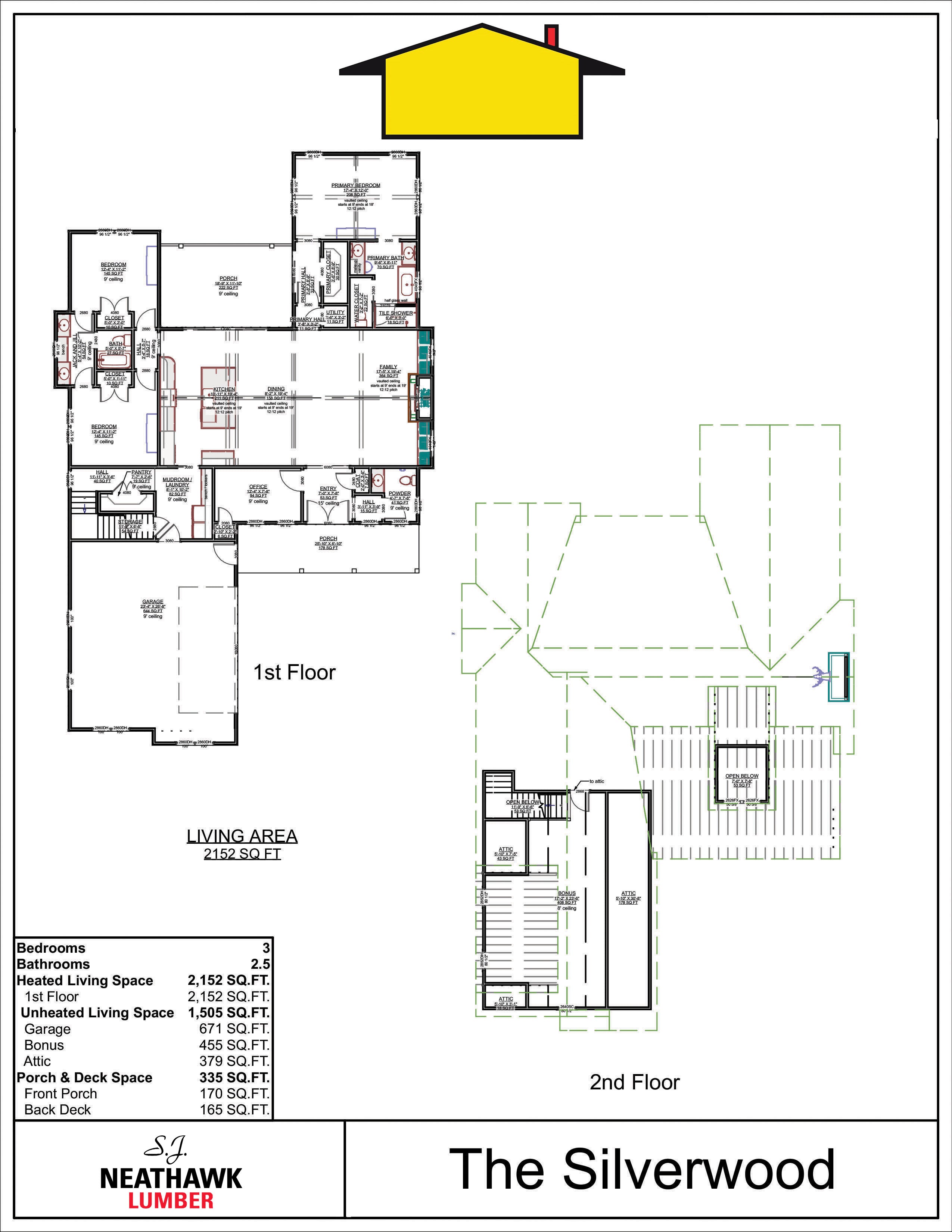
Silverwood
Engineering stamps available for all plans upon request to meet local code requirements.
Plan Code: P-332-016-C
SQUARE FOOTAGE BREAKDOWN
Total Heated Area: 2,152 sq. ft.
First Floor: 2,152 sq. ft.
BEDS/BATH
Bedrooms: 3
Full Bathrooms: 2
Half Bathrooms: 1
STYLE
Transitional
GARAGE
Type: Attached
Area: 671 sq. ft.
Count: 1
Entry: Front Left
FOUNDATION TYPE
Standard Foundations: Crawlspace
Optional Foundations: Walkout, Monolithic Slab, Daylight, Basement, Slab
ROOF DETAILS
Primary Pitch: 12 on 12
Secondary Pitch: 2 on 12
Framing Type: Stick or Truss
EXTERIOR WALLS
Standard Type(s): 2x4
Optional Type(s): 2x6
DIMENSIONS
Width: 52’- 0”
Depth: 73’-4”
Max Ridge Height: 21’-6”
CEILING HEIGHTS
First Floor / 9’0”
Second Floor / 8’0”
THIS PLAN CAN BE MODIFIED.
Choose options


































Silverwood
Sale price$1,195.00
