











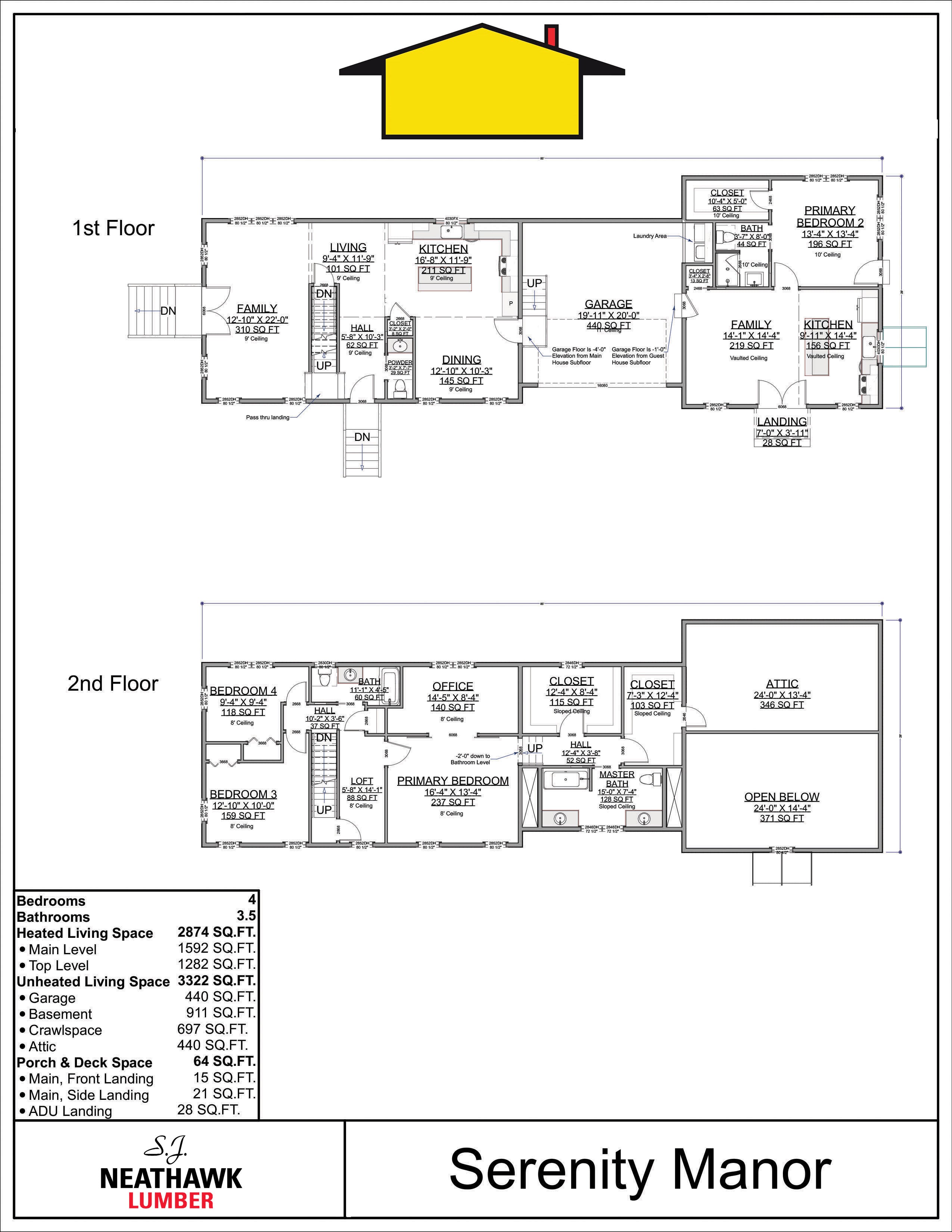
Serenity Manor
Engineering stamps available for all plans upon request to meet local code requirements.
Plan Code: P-441-001-B
SQUARE FOOTAGE BREAKDOWN
Total Heated Area: 2,874 sq. ft.
First Floor: 1,592 sq. ft.
Second Floor: 1,282 sq. ft.
Lower Level, Unfinished: 911 sq. ft.
BEDS/BATH
Bedrooms: 4
Full Bathrooms: 3
Half Bathrooms: 1
STYLE
Colonial
GARAGE
Type: Attached
Area: 440 sq.ft.
Count: 1
Entry: Front
FOUNDATION TYPE
Standard Foundations: Basement/Crawl
Optional Foundations: Walkout, Monolithic Basement, Daylight, Slab
ROOF DETAILS
Primary Pitch: 12 on 12
Secondary Pitch: 4 on 12
Framing Type: Stick or Truss
EXTERIOR WALLS
Standard Type(s): 2x4
Optional Type(s): 2x6
DIMENSIONS
Width: 85’
Depth: 29’
Max Ridge Height: 30’9”
CEILING HEIGHTS
First Floor / 9’0”
Second Floor / 8’0”
Lower Level / 8'0"
THIS PLAN CAN BE MODIFIED.
Choose options












Serenity Manor
Sale price$1,245.00
