













Peak's Pier
Engineering stamps available for all plans upon request to meet local code requirements.
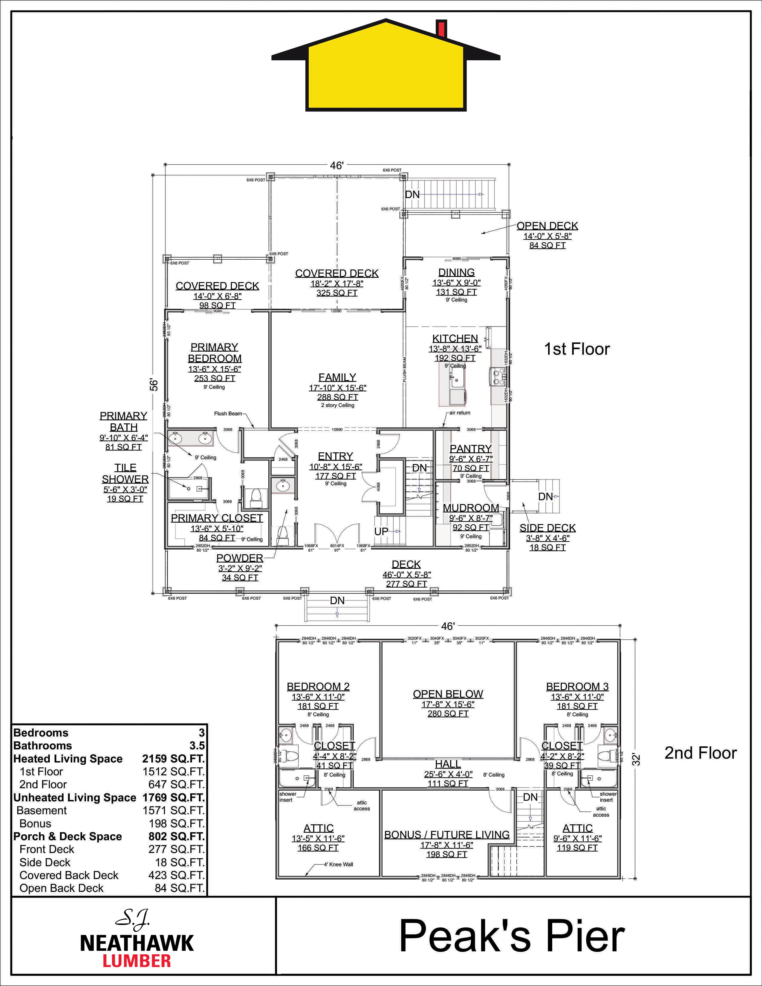
Plan Code: P-330-019-B
SQUARE FOOTAGE BREAKDOWN
Total Heated Area: 2,159 sq. ft.
First Floor: 1,512 sq. ft.
Second Floor: 647 sq. ft.
Lower Level, Unfinished: 1,571 sq. ft.
BEDS/BATH
Bedrooms: 3
Full Bathrooms: 3
Half Bathrooms: 1
STYLE
Lakehouse, Modern Farmhouse
GARAGE
None
FOUNDATION TYPE
Standard Foundations: Basement
Optional Foundations: Walkout, Monolithic Slab, Daylight, Crawl, Slab
ROOF DETAILS
Primary Pitch: 8 on 12
Secondary Pitch: 12 on 12
Framing Type: Stick or Truss
EXTERIOR WALLS
Standard Type(s): 2x4
Optional Type(s): 2x6
DIMENSIONS
Width: 46’
Depth: 56'
Max Ridge Height: 27’9”
CEILING HEIGHTS
First Floor / 9’0”
Second Floor / 9’0”
Lower Level / 8’0”
Lower Level / 8’0”
THIS PLAN CAN BE MODIFIED.
Choose options














Peak's Pier
Sale price$1,195.00
