










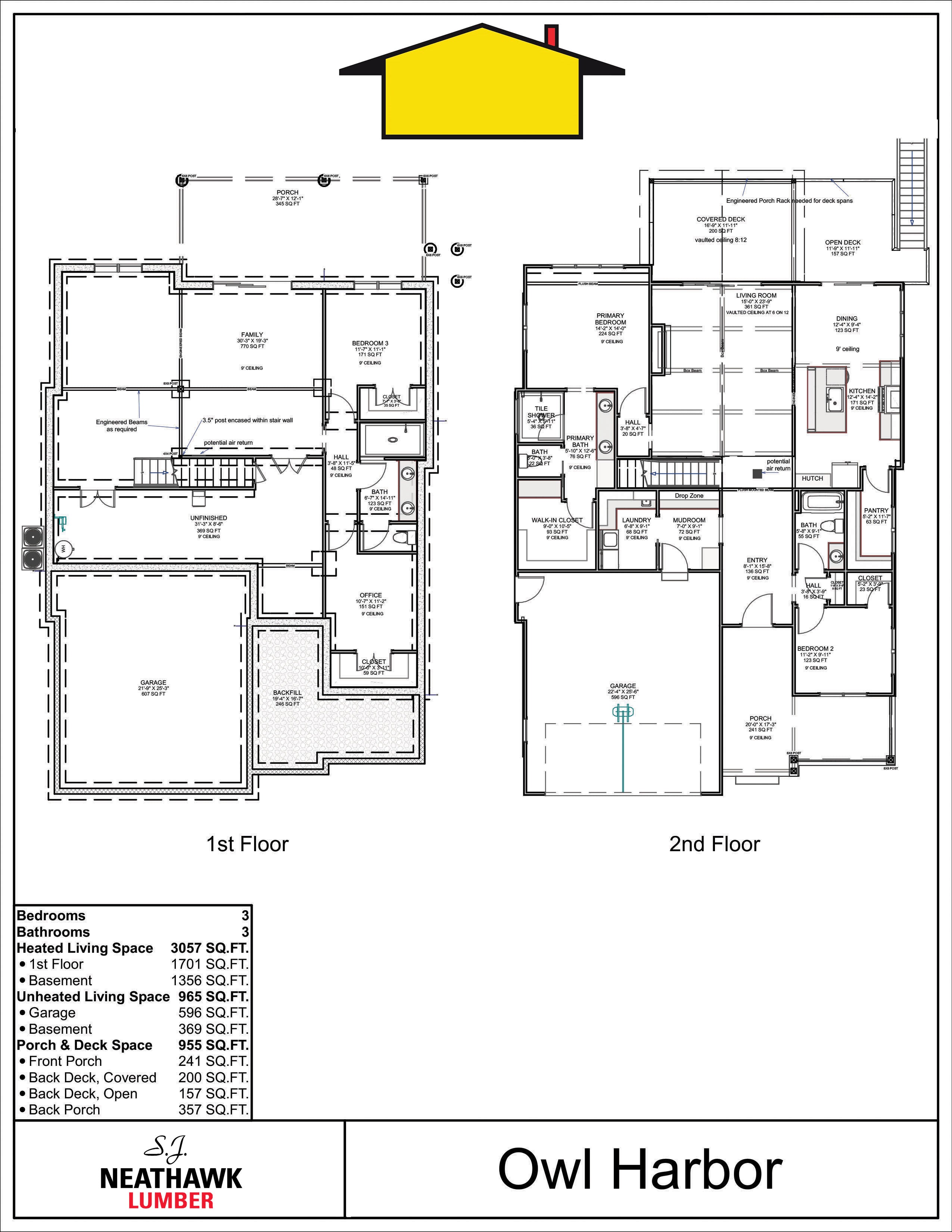
Owl Harbor
Engineering stamps available for all plans upon request to meet local code requirements.
Plan Code: P-332-005-B
SQUARE FOOTAGE BREAKDOWN
Total Heated Area: 3,057 sq. ft.
First Floor: 1,701 sq. ft.
Second Floor: 1,356 sq. ft.
BEDS/BATH
Bedrooms: 3
Full Bathrooms: 3
Half Bathrooms: 0
STYLE
Traditional, Craftsman, Lakehouse
GARAGE
Type: Attached
Area: 596 sq.ft.
Count: 2
Entry: Front
FOUNDATION TYPE
Standard Foundations: Basement
Optional Foundations: Walkout, Monolithic Basement, Daylight, Slab, Crawl
ROOF DETAILS
Primary Pitch: 6 on 12
Secondary Pitch: 8 on 12
Framing Type: Stick or Truss
EXTERIOR WALLS
Standard Type(s): 2x4
Optional Type(s): 2x6
DIMENSIONS
Width: 48’
Depth: 61’6"
Max Ridge Height: 23.4’
CEILING HEIGHTS
First Floor / 9’0”
Second Floor / 0’0”
Lower Level / 9'0"
THIS PLAN CAN BE MODIFIED.
Choose options











Owl Harbor
Sale price$1,245.00
