






































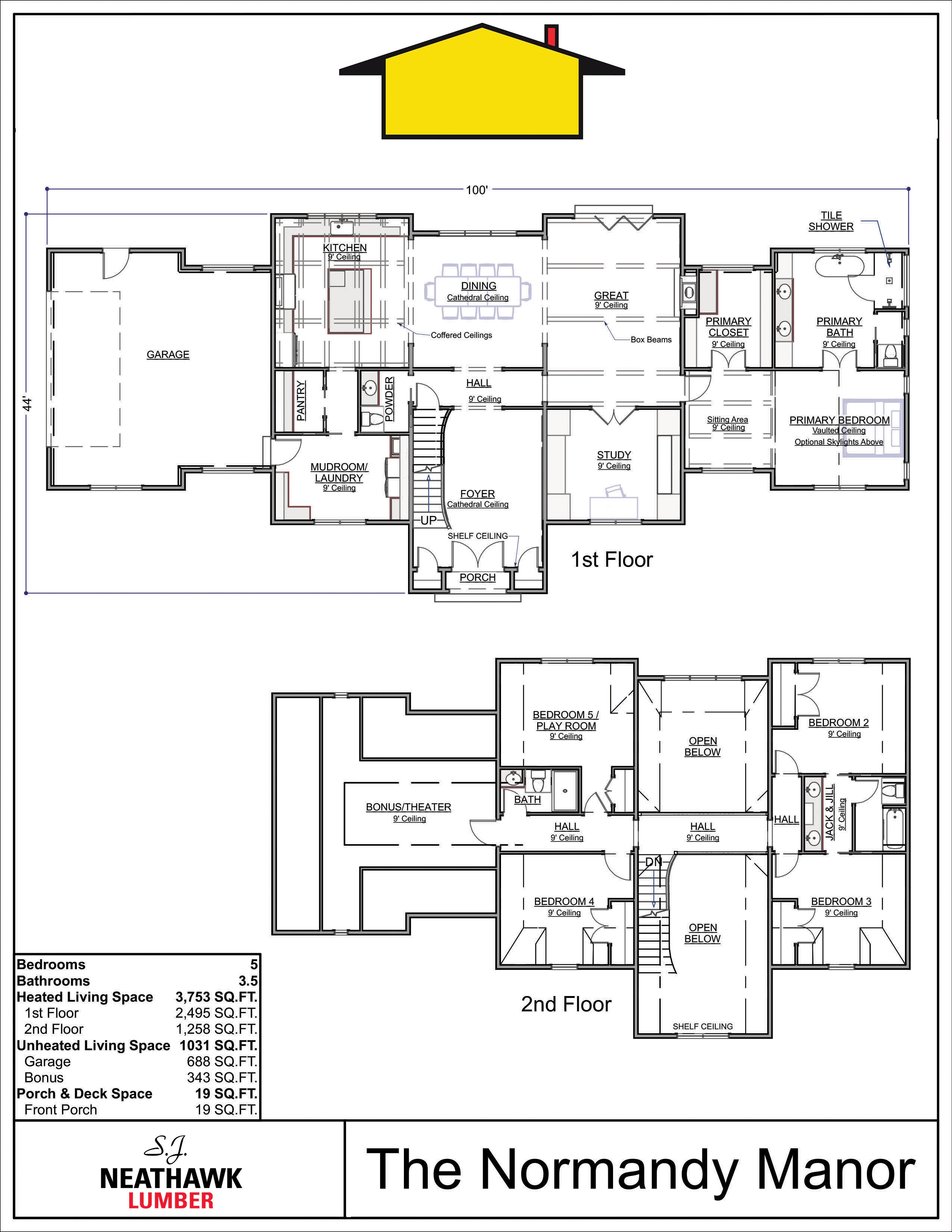
Normandy Manor
Engineering stamps available for all plans upon request to meet local code requirements.
Plan Code: P-542-002-C
SQUARE FOOTAGE BREAKDOWN
Total Heated Area: 3,753 sq. ft.
First Floor: 2,495 sq. ft.
Second Floor: 1,258 sq. ft
BEDS/BATH
Bedrooms: 5
Full Bathrooms: 3
Half Bathrooms: 1
STYLE
French Country
GARAGE
Type: Attached
Area: 688 sq. ft.
Count: 2
Entry: Side
FOUNDATION TYPE
Standard Foundations: Crawlspace
Optional Foundations: Walkout, Monolithic Slab, Daylight, Crawl, Basement
ROOF DETAILS
Primary Pitch: 10 on 12
Secondary Pitch: 16 on 12
Framing Type: Stick or Truss
EXTERIOR WALLS
Standard Type(s): 2x6
Optional Type(s): 2x4
DIMENSIONS
Width: 100’0“
Depth: 44’0”
Max Ridge Height: 32’0.9”
CEILING HEIGHTS
THIS PLAN CAN BE MODIFIED.
Choose options







































