











Cedar Lodge
Engineering stamps available for all plans upon request to meet local code requirements.
Plan Code:
P-320-001-C
SQUARE FOOTAGE BREAKDOWN
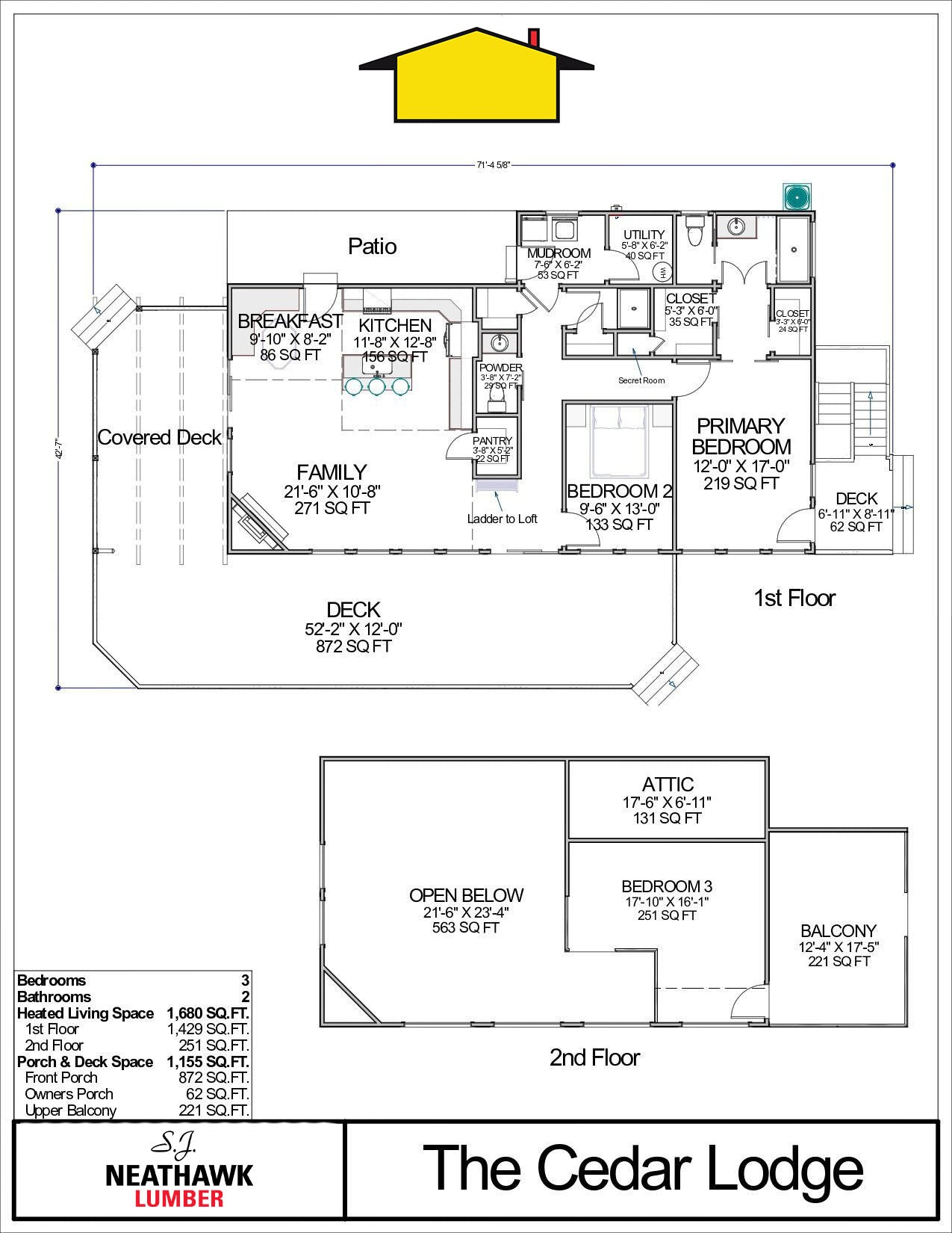
Total Heated Area: 1,680 sq. ft.
First Floor: 1,429 sq. ft.
Second Floor: 251 sq. ft.
BEDS/BATH
Bedrooms: 3
Full Bathrooms: 2
STYLE
Modern Craftsman
GARAGE
None
FOUNDATION TYPE
Standard Foundations: Crawl
Optional Foundations: Walkout, Monolithic Slab, Daylight, Slab, Basement
ROOF DETAILS
Primary Pitch: 4 on 12
Secondary Pitch: 1 on 12
Framing Type: Stick or Truss
EXTERIOR WALLS
Standard Type(s): 2x4
Optional Type(s): 2x6
DIMENSIONS
Width: 70’11“
Depth: 42’7”
Max Ridge Height: 19’7”
CEILING HEIGHTS
First Floor / 8’0”
Second Floor / 8’0”
THIS PLAN CAN BE MODIFIED.
Choose options












Cedar Lodge
Sale price$1,145.00
