









Carriage Cove II
Engineering stamps available for all plans upon request to meet local code requirements.
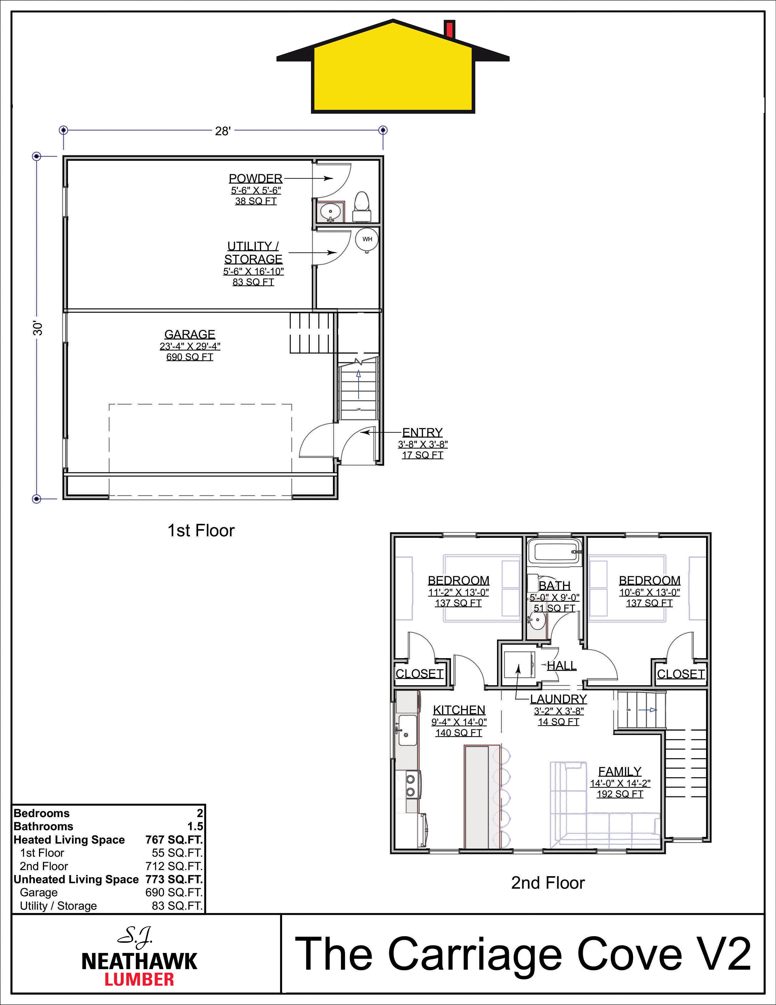
Plan Code: P-222-003-S
SQUARE FOOTAGE BREAKDOWN
Total Heated Area: 767 sq. ft.
First Floor: 55 sq. ft.
Second Floor: 712 sq. ft.
BEDS/BATH
Bedrooms: 2
Full Bathrooms: 1
Half Bathrooms: 1
STYLE
Carriage
GARAGE
Type: Attached
Area: 690 sq.ft.
Count: 2
Entry: Front
FOUNDATION TYPE
Standard Foundations: Slab
Optional Foundations: Walkout, Monolithic Basement, Daylight, Crawl
ROOF DETAILS
Primary Pitch: 8 on 12
Framing Type: Stick or Truss
EXTERIOR WALLS
Standard Type(s): 2x4
Optional Type(s): 2x6
DIMENSIONS
Width: 28’
Depth: 30’
Max Ridge Height: 27’-10”
CEILING HEIGHTS
First Floor / 9’0”
Second Floor / 8’0”
THIS PLAN CAN BE MODIFIED.
Choose options










Carriage Cove II
Sale price$895.00
